VenditaAppartamentoVia Rizzieri Serato 35018 San Martino di Lupari (PD)

San Martino di Lupari – Appartamento duplex

Via Rizzieri Serato 35018 San Martino di Lupari (PD)
  • 3 letti
  • 2 bagni
  • 130

Condividi questa casa

Copia

O condividi con

Nozioni di base

  • Data aggiunta : Aggiunto 8 mesi fa
  • ID: SML01
  • Garage: Box e posto auto scoperto
  • Classe Energetica: A4
  • Categoria :
  • Tipo :
  • Stato :
  • Camere da letto: 3
  • Bagni: 2
  • Piani: 2
  • Piano terra : 1
  • La zona : 130
  • Anno costruito : 2023

Descrizione

  • Descrizione:

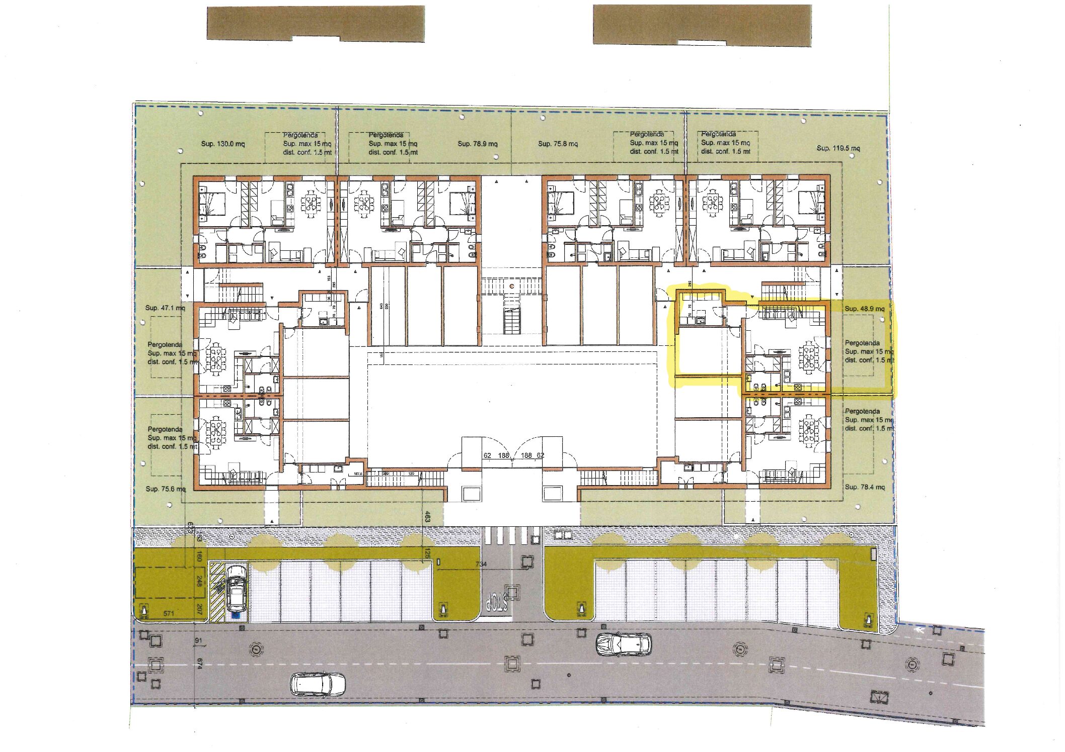
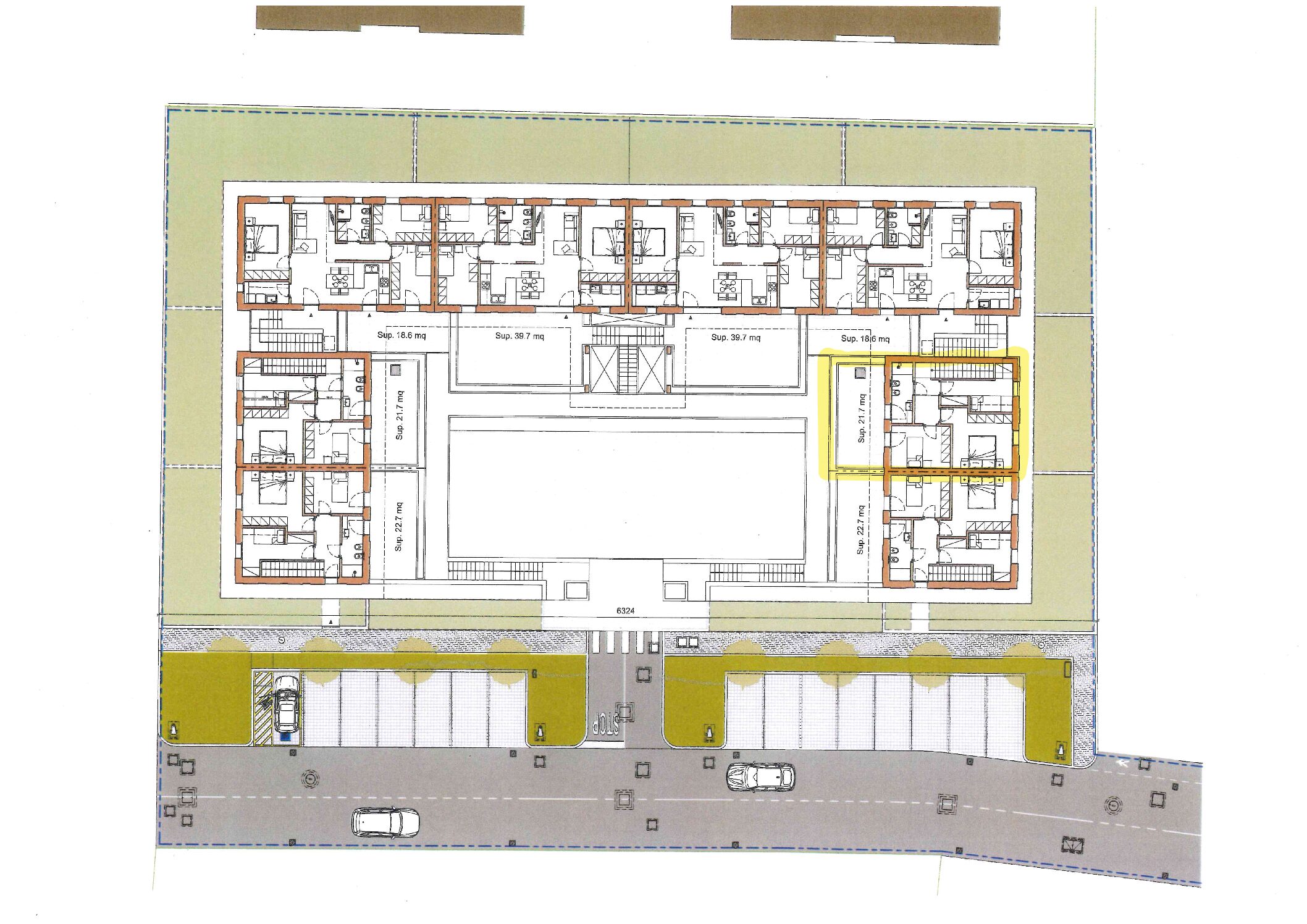
    Scopri un'opportunità unica con questo splendido appartamento su due piani, situato nel cuore di un tranquillo quartiere residenziale a San Martino di Lupari. Immerso nel verde, questo immobile è perfetto per chi cerca comfort e tranquillità, senza rinunciare alla comodità dei servizi a portata di mano. Il piano terra accoglie un luminoso living che si affaccia su un giardino privato, ideale per momenti di relax all'aperto. La comoda lavanderia e un bagno di servizio completano il piano. Al piano superiore, troverai tre camere da letto spaziose, una delle quali con accesso a un terrazzo privato di 21 mq, perfetto per godere del sole. Un bagno con doccia serve il piano superiore, garantendo praticità e comfort. L'appartamento è dotato di impianti di ultima generazione, tra cui pannelli fotovoltaici e riscaldamento a pavimento, assicurando un'ottima efficienza energetica (Classe A4). La microventilazione e la predisposizione per l'impianto di allarme e climatizzazione offrono ulteriore sicurezza e comfort. Garage e posto auto esterno inclusi nel prezzo.

    Mostra tutta la descrizione

Planimetrie

  • Planimetrie :

Chiedi a un agente di questa casa

Facendo clic sul pulsante «RICHIEDI INFO» accetti Termini di utilizzo e Politica sulla riservatezza

[jet_engine component="forms" _form_id="3898"]

Condividi questo property

Copia

O condividi con

Reset password

Inserisci il tuo indirizzo email e ti invieremo un link per cambiare la tua password.

Inizia con il tuo account

per salvare i tuoi immobili preferiti e molto altro

Iscriviti con e-mail

Inizia con il tuo account

per salvare i tuoi immobili preferiti e molto altro

Facendo clic sul pulsante «ISCRIZIONE» accetti Termini di utilizzo e Politica sulla riservatezza